Zum Inhalt der Seite springen
1 / 3

CAPE 10

CAPE 10 ist als Sozial- und Gesundheitszentrum ein Projekt der gemeinnützigen CAPE 10 Stiftung. Die erwirtschafteten Einnahmen aus Veranstaltungen finanzieren die sozialen Projekte des Hauses. Jede Veranstaltung leistet somit einen wichtigen Beitrag zur dauerhaften Umsetzung von dringend nötigen Sozial- und Bildungsprogrammen.

Alfred-Adler-Straße 1, 1100 Wien

Eigenschaften

Eckdaten

  • 4 Räume
  • max. 160 Gäste
  • 2 Ebenen
  • Exklusiver Technikpartner
  • Freie Cateringwahl
  • kostenpflichtige Garage in unmittelbarer Nähe
  • modern
  • Nebenräume vorhanden
  • Vermietungen kommen sozialen Aspekten zu Gute
  • zentral gelegen im Sonnwendviertel

Veranstaltungsart

  • Abendveranstaltung
  • Dinner / Gala
  • Firmenevent / Veranstaltung
  • Hochzeit
  • Kongress / Messe
  • PR & Marketing
  • Tagung / Seminar
  • Weihnachtsfeier

Technisches

  • Beamer
  • Bühne
  • Bühnentechnik
  • Deckensteckdosen
  • DJ-Anlage
  • Flipchart
  • Konferenztechnik
  • Leinwand
  • Licht-Technik
  • Moderationskoffer
  • Starkstromanschlüsse
  • Tonanlage
  • WLAN/Internetanschluss

Infrastruktur

  • Außenbereich
  • Barrierefreier Zugang
  • Garderobe vorhanden
  • Heizung
  • heller Boden
  • Klimaanlage
  • Lastenlift
  • Lift
  • LKW-Zufahrt möglich
  • Mobiliar vorhanden
  • WCs

Beschreibung

Die neue, moderne Eventlocation
CAPE 10 Wiener Städtische Schauplatz befindet sich im Gebäude von CAPE 10 – Haus der Zukunft und sozialen Innovation – im Sonnwendviertel unweit des Wiener Hauptbahnhofs. Die auf das Wesentliche reduzierte Architektur des Gebäudes verbindet auf angenehme Weise „Fabriksfeeling“ mit technoidem Charme und schafft viel Raum für vielfältige Aktivitäten und Angebote. Der neue Treffpunkt im Untergeschoß des Gebäudes – der CAPE 10
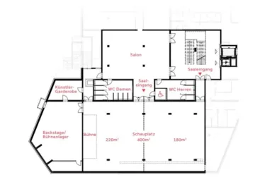
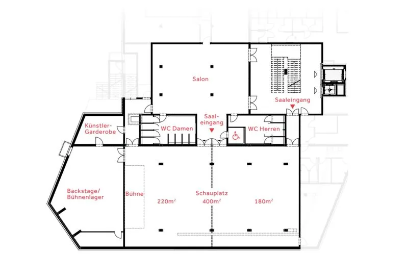
Wiener Städtische Schauplatz – bietet einen optimalen Rahmen für unterschiedlichste Veranstaltungen und kann mittels einer einziehbaren Wand in zwei Räume (Option A und B) geteilt werden.


Raumaufteilung

  • Stehend
  • Parlament
  • Reihen
  • U-Form
  • Gala
  • Bankett
Raumname L x B x H
(Raumgröße)
Marktplatz n.a.
(212m²)
0
Pax
0
Pax
0
Pax
0
Pax
0
Pax
0
Pax
Salon n.a.
(120m²)
0
Pax
0
Pax
0
Pax
0
Pax
0
Pax
0
Pax
Option B n.a.
(180m²)
0
Pax
80
Pax
150
Pax
0
Pax
0
Pax
0
Pax
Option A n.a.
(220m²)
0
Pax
80
Pax
160
Pax
0
Pax
0
Pax
0
Pax

L X B X H in Meter: n.a. ; 0m²


200
Pax

160
Pax

320
Pax

0
Pax

0
Pax

140
Pax

L X B X H in Meter: n.a. ; 212m²


0
Pax

0
Pax

0
Pax

0
Pax

0
Pax

0
Pax

L X B X H in Meter: n.a. ; 120m²


0
Pax

0
Pax

0
Pax

0
Pax

0
Pax

0
Pax

L X B X H in Meter: n.a. ; 180m²


0
Pax

80
Pax

150
Pax

0
Pax

0
Pax

0
Pax

L X B X H in Meter: n.a. ; 220m²


0
Pax

80
Pax

160
Pax

0
Pax

0
Pax

0
Pax

Karte

Alfred-Adler-Straße 1, 1100 Wien

Weiter suchen